1-к, Лесная, 4а Показать на карте
Черноголовка
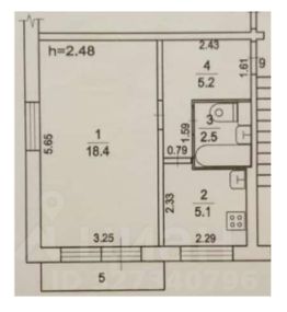
Продаю 1-комнатную квартиру. Самое выгодное предложение района! Дом расположен у леса. Можно жить в квартире и ощущать себя за городом. ХАРАКТЕРИСТИКИ КВАРТИРЫ: Расположение на 1 высоком этаже, что позволит быстро выйти из дома, как пожилому человеку, так и родителям с коляской или же детям на велосипеде.О КВАРТИРЕ:Общая площадь с учетом лоджии 32.7 кв. м., без учета лоджии - 30.5 кв. м. Расположена на 1 этаже 9-ти этажного панельного дома. Комнаты 15.7 кв. м. Кухня 5.9 кв. м. Коридор 5.2 кв. м.Ремонт в квартире выполнен в светлых пастельных тонах: потолки покрашены, на полу в комнате, коридоре и кухне - ламинат, совмещенный санузел - ванная и туалетная комната декорированы панелями, на окнах установлены пластиковые стеклопакеты. Окна выходят во двор.О ДОМЕ: Теплый панельный дом 1975 года постройки, серия дома II-49 . Чистый подъезд, косметический ремонт проводится регулярно, установлен новый лифт. Есть пандус. Замечательный зелёный двор, парковочные места для жителей дома есть всегда. ИНФРАСТРУКТУРА: Здесь есть все, что требуется современному человеку: - школы, детские сады, поликлиника, стационар, магазины, пункты выдачи заказов. В 10 минутах ходьбы на располагается сквер имени Халатникова, где Вы сможете прекрасно провести время с семьей!ТРАНСПОРТНАЯ ДОСТУПНОСТЬ: Прямое сообщение с Москвой.Заключение:Ипотека любых банков. Альтернативная продажа, без обременений, материнский капитал не использовался. Полная стоимость в договоре. Оперативный показ. Звоните и записывайтесь на просмотр вашей будущей квартиры. Ждем Вас!
30 м2
1 / 9 этаж
Панель
- Показать контакты
- Добавить в избранное
30 м2
1 / 9 этаж
Панель
3 750 000
122 951 /м2
